客户:缅甸客户
生产产品:330ml易拉罐奶瓶、100ml奶瓶、200ml奶瓶
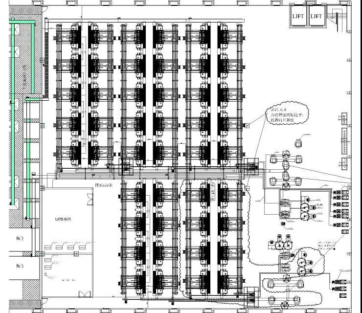
车间面积:2600个平方
产能需求:每条生产线25000瓶/小时
配置吹瓶机:46台一出八85U奶瓶机
采用的自动化工程:自动化输送系统、中央供料系统
实际产能:25000瓶/小时/一条生产线
配置人手:2人检瓶,2人供新料,2人巡检

△车间平面图

▲供料、制品输送一体化

▼制品运输区

△供料区
△破碎区
-END-
广东乐善智能装备股份有限公司
证券简称:乐善智能
证券代码:871695
地址:广东省佛山市顺德大良五沙新辉路1号
电话:0757-28376168
电邮:leshan@china-leshan.com
官网:www.china-leshan.com